|
MLS #50203621 |
$225,000 |
25307 Dover Road
CALUMET, MI 49913
|
COUNTY Houghton |
SCHOOL DISTRICT Dollar Bay/Tamarack City Area Sc |
PROPERTY TAX AREA Osceola Twp (31021) |
|
WATERFRONT Yes |
WATER VIEW |
SHORELINE Pond,Water View,Waterfront |
|
ROAD ACCESS City/County,Gravel,Year Round |
STATUS Active |
CATEGORY Residential |
|
REQUEST INFO |
VIEW MAP |
|
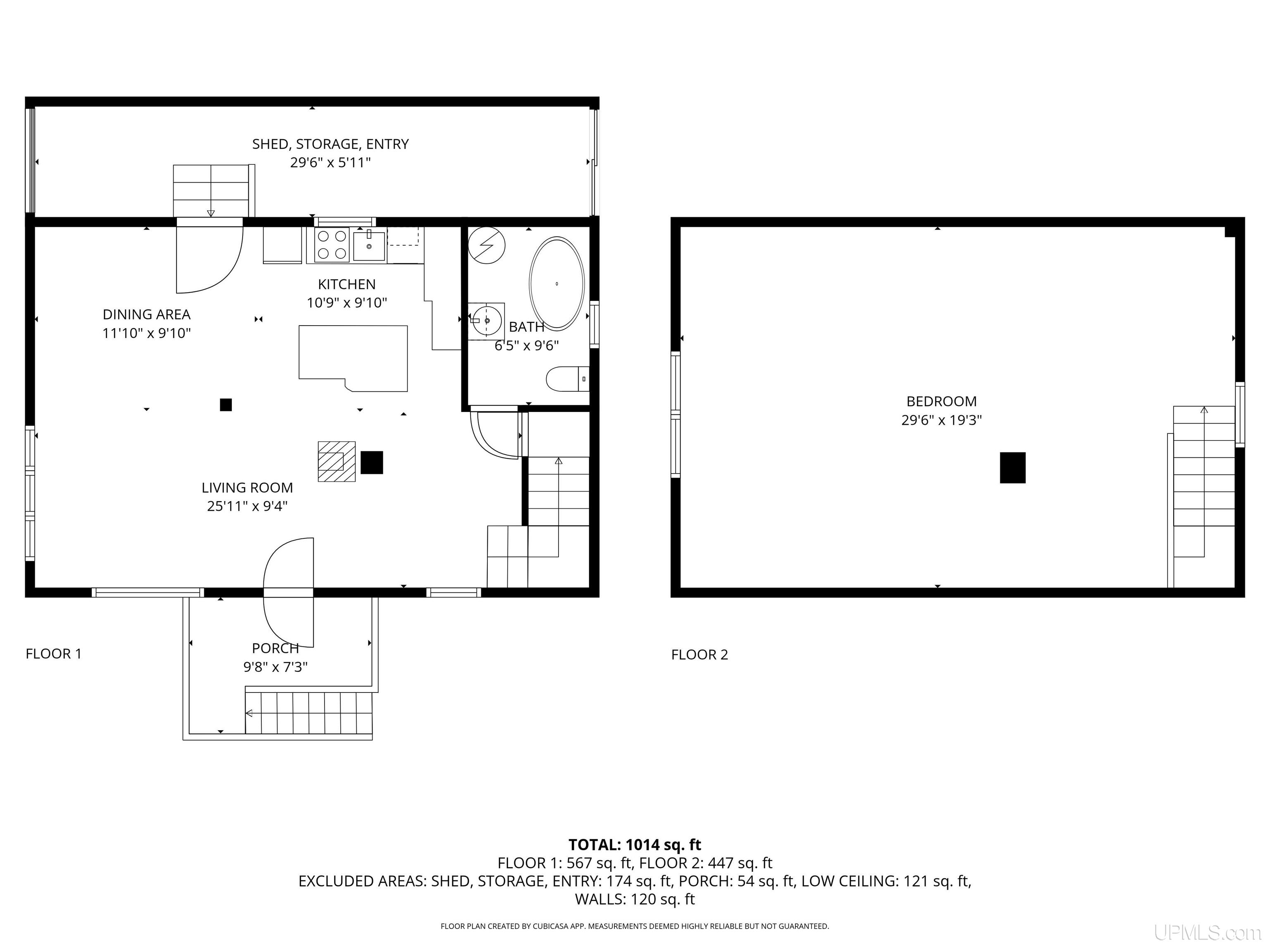
Rustic Pondside Cabin in the Woods. Tucked beneath tall pines and overlooking a quiet wooded pond, this small home is the kind of place you dream about when you want to slow down. Built with simple charm and surrounded by nature, it's a retreat where mornings begin with birdsong and evenings end with the call of owls across the water. The open floorplan and front entry porch provide peaceful pond views. The second floor bedroom has ample space for partitioning if desired. The woodstove and backup propane heater will keep you warm and cozy. The 20 acre site is perfect for campfires, hammocks, and stargazing. The pond is for canoeing, fishing, or just dipping your toes. Whether you're after a weekend hideaway or year-round homestead, this rustic cabin offers the quiet and simplicity you've been looking for. Conveniently located near Calumet & Lake Linden.
DETAILS
|
TOTAL BEDROOMS 1.00 |
TOTAL BATHROOMS 1.00 |
EST. SQ. FEET (FINISHED) 1014.00 |
|
ACRES (Approx.) 20.00 |
LOT DIMENSIONS 660x1320 |
YEAR BUILT (APPROX.) 1986 |
UTILITIES, HEATING & COOLING
|
HEAT LP/Propane Gas,Wood: Radiant,Suspended Heaters |
SEWER Septic |
AIR CONDITIONING None |
|
FEATURES Hardwood Floors |
||
ROOM SIZES
|
BEDROOM 1 19x29 |
BEDROOM 2 x |
BEDROOM 3 x |
BEDROOM 4 x |
|
BATHROOM 1 x |
BATHROOM 2 x |
BATHROOM 3 x |
BATHROOM 4 x |
|
LIVING ROOM 9x25 |
FAMILY ROOM x |
DINING ROOM 9x11 |
DINING AREA x |
|
KITCHEN 9x10 |
BUILDING & CONSTRUCTION
|
FOUNDATION Crawl |
CONSTRUCTION Wood |
BASEMENT No |
|
GARAGE |
EXTERIOR Deck,Porch |
FIREPLACE |
|
FEATURES Entry,Living Room,First Flr Full Bathroom |
||
|
ACCESSIBILITY Covered Entrance |
||
|
GREEN FEATURES Insulation |
||
Listing Office:
Superior Properties -real Estate Sales And Rentals
Listing Agent:
Tikkanen, Thomas
Request More Information
